Spatii comerciale de inchiriat in City Business Center
Spatiul comercial oferit spre inchiriere este amplasat central, la doar 50 metri intre Bulevardul Unirii. Transportul public include statii de autobuz si tramvai in proximitatea cladirii (1-2 minute de mers).
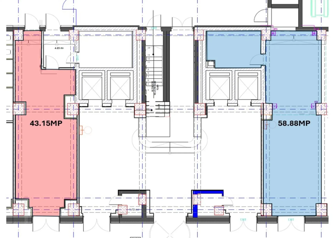
TABEL DETALIAT SUPRAFEȚE DISPONIBILE
| Etaj | Suprafață (m2) | Descriere | Disponibil | |||
| Parter | 43,15 | spatiu comercial, intrare principala clienti dinspre Nerva Traian si intrare secundara marfa; chirie 1.300 €/luna + TVA | imediat | Plan | ||
| Parter | 58,88 | atiu comercial, intrare direct din Str. Nerva Traian; chirie 1.750 €/luna + TVA | imediat | Plan |
Spatiu comercial de inchiriat in zona Unirii
Spatiile comerciale oferite spre inchiriere sunt amplasate central,in sectorul 3, la doar 50 metri intre Bulevardul Unirii si Bulevardul Octavian Goga, la parterul cladirii CITY BUSINESS CENTER. Spatiile comerciale au suprafatele de 43 si 59 m2.
Cladirea este lipita de fostul hotel DoubleTree by Hilton si in fata viitorul preconizat Cartier al Justitiei, la o distanta de 1,2 km de Piata Unirii / Unirea Shopping Center si 700 de metri de Piata Alba Iulia.
Vecinatatile cladirii includ cladiri rezidentiale si spatii comerciale, cladiri de birouri si sedii administrative (Biblioteca Nationala, Enel, Tribunalul Bucuresti etc.), hoteluri etc.
Accesul cu automobilul se realizeaza din bulevarde majore, cu conexiuni directe catre km 0 si inelul median de circulatie.
Transportul public include statii de autobuz si tramvai in proximitatea cladirii (1-2 minute de mers), cu acces in 10 minute la nodul de transport de la Piata Unirii (2 magistrale de metrou).
City Business Center este o cladire de birouri modernizata in 2017, desfasurata pe subsol, parter si 11 etaje si beneficiaza de receptie modernizata, acces securizat si paza 24/7, patru lifturi de persoane, climatizare cu ventiloconvectoare, tavan casetat, sistem de detectie fum/foc si sprinklere.
City Business Center dispune de spatii comerciale la parter (Mega Image, cafenea, cantina), loc pentru fumat si locuri de parcare securizate cu bariera in partea din spate, respectiv locuri de parcare publice in fata cladirii.
Status Cladire finalizata
Dată finalizare 1996 (modernizata 2017)
Niveluri S+P+11
- Vad comercial
- Servicii receptie
- Parcare in fata
- Trecere pietoni
- ATM
- Banci
- Trafic auto intens
- Trafic pietonal intens
- Vizibilitate
- Statie transport public
- Ventiloconvectoare
- Tavan Suspendat
- Acces Securizat
- Ferestre cu deschidere
- Receptie
- Paza 24/7
- Furnizori multipli de servicii Date si Voce
- CCTV / Supraveghere Video
- Detectoare Fum/Foc
- Sprinkler System
- Mocheta
Alte oferte din Unirii
Oferte disponibile: 14
Bulevardul Unirii 80 , București
Strada Halelor 7 , Unirii , București
Bulevardul Corneliu Coposu 5 , Unirii , București
Bulevardul Corneliu Coposu 3 , Unirii , București
Calea Calarasilor 180 , Unirii , București
Bulevardul Corneliu Coposu 3-5 , Unirii , București
Bdul. Unirii 68 , Unirii , București
Bdul. Unirii 68 , Unirii , București
Piata Unirii 1 , Unirii , București
Bulevardul Mircea Voda 24 , Unirii , București
Str. Baratiei 41-43 , București , Zonă Centru
Bulevardul Unirii 27 , Unirii , București
Strada Vintila Voda 2 , Unirii , București
Bulevardul Dimitrie Cantemir 11 , Unirii , București
Ești chiriaș?
Contactează-ne și vei primi consultanță gratuită cu privire la:
- condițiile existente în piață
- renegociere termeni contractuali
- opțiuni de relocare
Ești proprietar?
Contactează-ne dacă vrei să fii prezent în cea mai avansată platformă online dedicată închirierii/vânzării de spatii comerciale
Contactează-ne



















