Spatiu comercial de inchiriat pe Bulevardul Petrochimistilor, Pitesti
Spațiul comercial propus spre închiriere este amplasat în municipiul Pitești, pe Bulevardul Petrochimiștilor, într-o zonă aflată într-un proces continuu de dezvoltare.
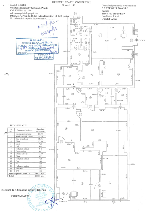
Inchiriere spatiu comercial in cartierul Prundu
Spațiul comercial propus spre închiriere este amplasat în municipiul Pitești, pe Bulevardul Petrochimiștilor, într-o zonă aflată într-un proces continuu de dezvoltare, ce beneficiază de acces facil către principalele artere de circulație ale orașului.
Amplasarea strategică a spațiului oferă o vizibilitate excelentă la stradă și un trafic auto intens, datorită conexiunilor rapide cu zona industrială, centrul orașului și autostrada A1. Aceste caracteristici fac locația potrivită pentru activități comerciale, showroom-uri, servicii financiare sau de tip office.
Transportul public este bine dezvoltat în zonă, fiind deservit de linii de autobuz care asigură legături rapide cu centrul municipiului Pitești și cartierele limitrofe, oferind un flux constant de potențiali clienți.
Vecinătățile imediate includ instituții bancare precum BCR și Garanti Bank, centre comerciale și magazine de proximitate precum Kaufland, Lidl și Dr. Max, dar și restaurante, cafenele, clinici medicale și spații de servicii diverse, contribuind la crearea unui vad comercial solid și constant.
Spațiul are o suprafață totală de 203 m2 și se închiriază la prețul de 3.000 euro/lună, fiind disponibil imediat.
- Vad comercial
- Parcare in fata
- ATM
- Banci
- Trafic auto intens
- Trafic pietonal intens
- Vizibilitate
- Statie transport public
- CCTV / Supraveghere Video
Alte oferte din Pitești
Oferte disponibile: 8
Strada Victoriei nr. 89 , Pitești
Piata Vasile Milea 3 , Pitești
Bulevardul Libertatii 12 , Pitești
Strada Maior Gheorghe Sontu D1 , Pitești
Strada Smeurei 58 , Pitești
Bulevardul Republicii 52 , Pitești
Bulevardul I. C. Bratianu 16 , Pitești
Bulevardul I. C. Bratianu 2 , Pitești
Ești chiriaș?
Contactează-ne și vei primi consultanță gratuită cu privire la:
- condițiile existente în piață
- renegociere termeni contractuali
- opțiuni de relocare
Ești proprietar?
Contactează-ne dacă vrei să fii prezent în cea mai avansată platformă online dedicată închirierii/vânzării de spatii comerciale
Contactează-ne












